πωλήσεις

20251: Νέα 4όροφη Πολυκατοικία με  Pilotis & Υπόγειο, Μακεδονίας 57, Βριλήσσια

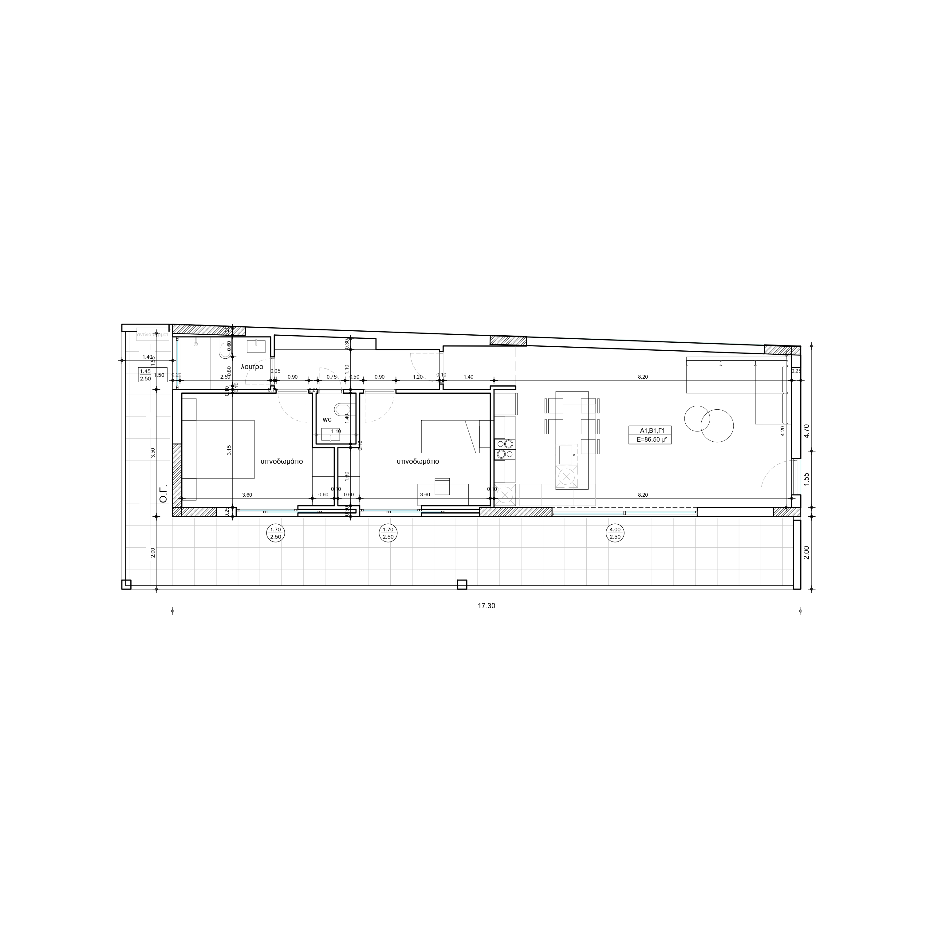
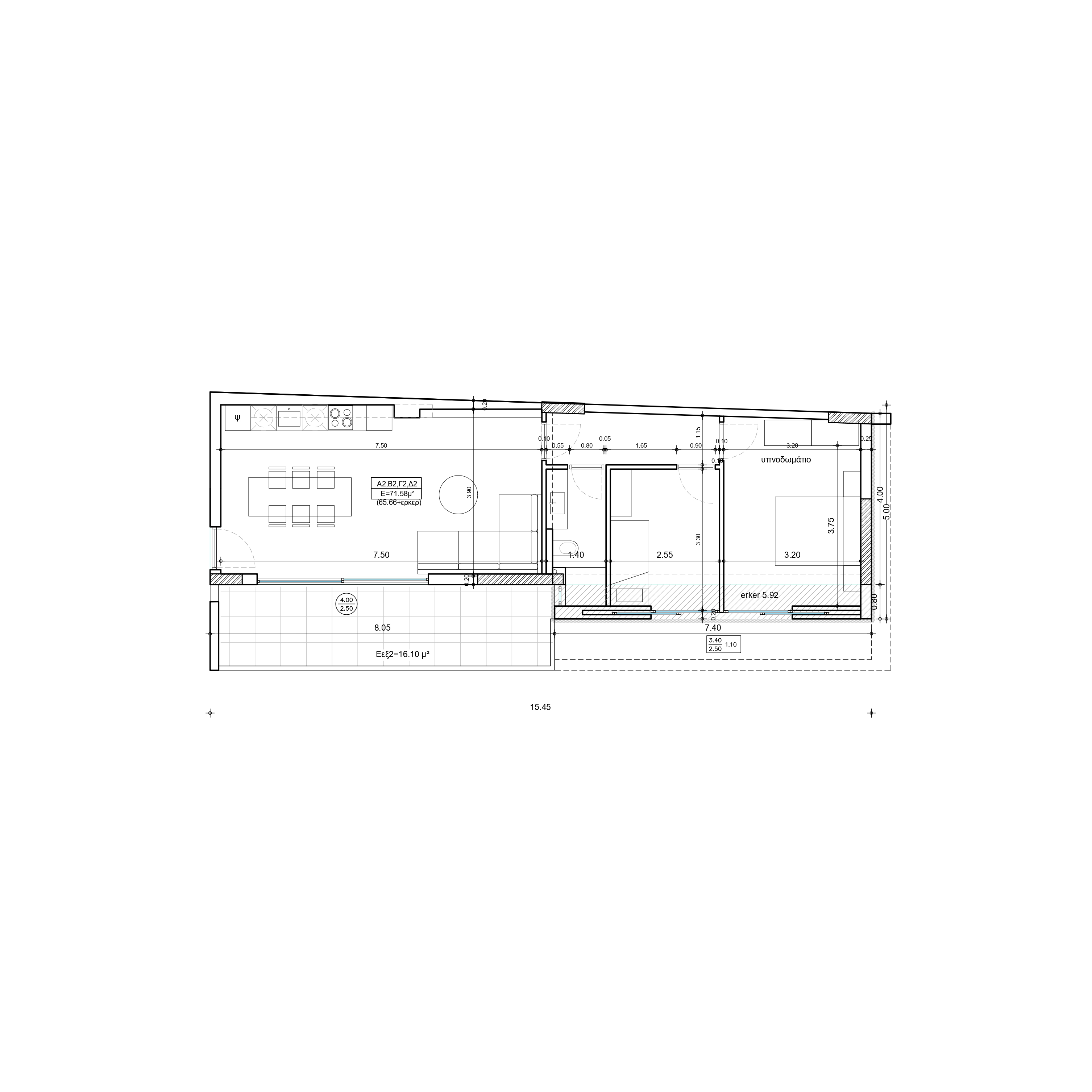
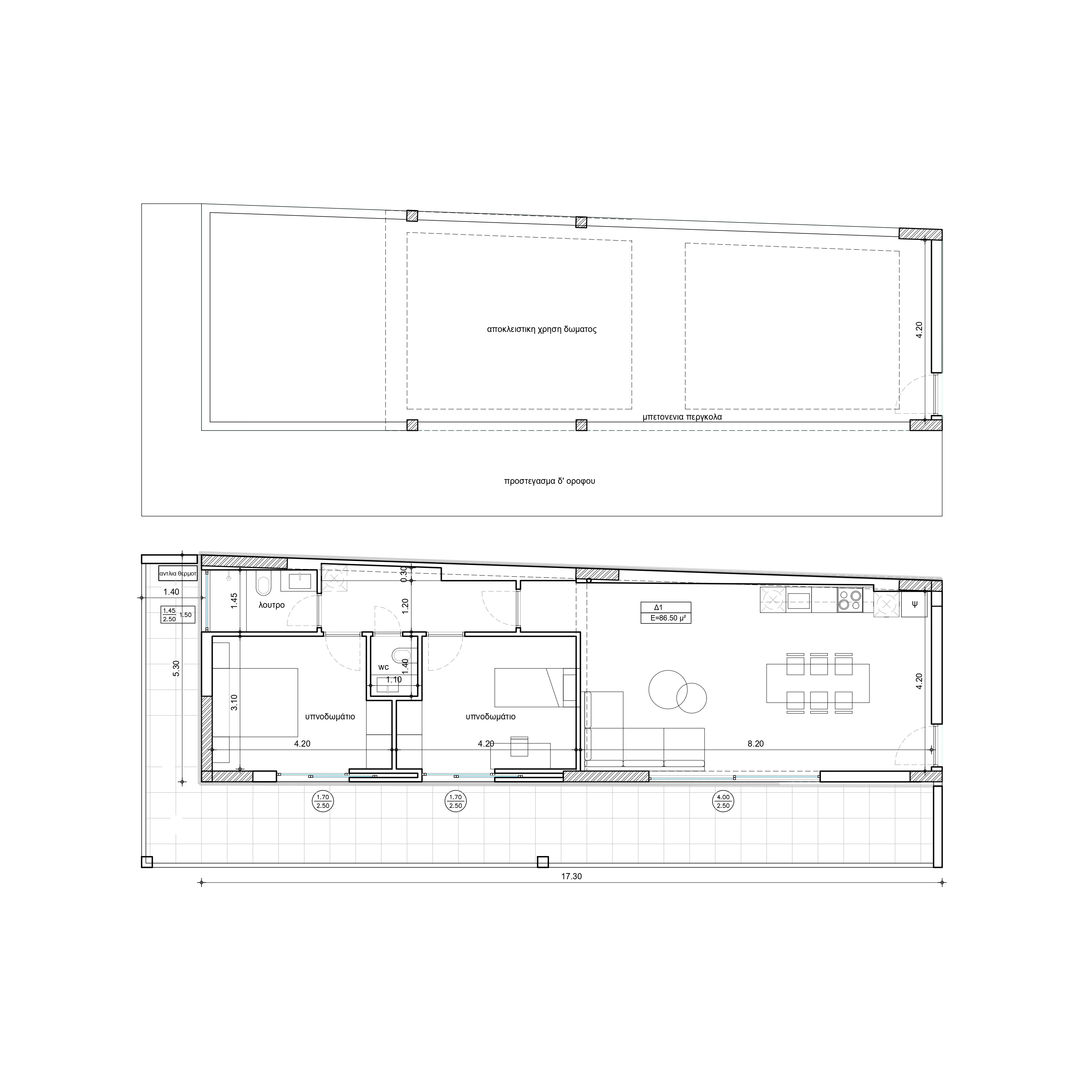
Πρόκειται για ένα νέο κτήριο σύγχρονων κατοικιών, αποτελούμενο από 4 τυπικούς ορόφους, υπόγειο και pilotis. Στεγάζει 8 πολυτελείς κατοικίες (4 διαμερίσματα των 71,58μ² και 4 διαμερίσματα των 86,50μ²). Στο υπόγειο στεγάζονται οι αποθήκες και οι βοηθητικοί χώροι μηχανολογικών εγκαταστάσεων (μηχανοστάσιο ανελκυστήρα). Στο ισόγειο, πιο συγκεκριμένα επί pilotis , στεγάζονται οι θέσεις στάθμευσης που συνοδεύουν το κάθε διαμέρισμα. Στον υπόλοιπο ακάλυπτο χώρο, διαμορφώνεται ο κήπος ο οποίος θα συνεισφέρει στο πράσινο του Δήμου.

Ιδιαίτερη έμφαση δίνεται στην κατανάλωση ενέργειας, τόσο από το στάδιο της μελέτης όσο και κατά την κατασκευή αλλά κυρίως τελικά κατά την λειτουργία του κτηρίου. Το αποτελεσματικότερο σύστημα εξοικονόμησης ενέργειας είναι το καλά μονωμένο κτήριο. Για το λόγο αυτό εφαρμόζεται εξωτερική θερμομόνωση σε όλο το κέλυφός του με γραφιτούχα πολυστερίνη.

Στον βασικό αυτό γνώμονα στηρίχτηκαν όλες οι μελέτες: θέρμανσης (πλήρης αυτονομία κάθε ιδιοκτησίας με αντλία θερμότητας ,παρέχοντας ζεστό νερό χρήσης αλλά και τροφοδοτώντας την ενδοδαπέδια θέρμανση όπως επίσης και τα  fan coils οροφής παρέχοντας κεντρικό κλιματισμό), φωτισμού, αερισμού,  αλλά και η επιλογή των υλικών, όπως π.χ. τοποθέτηση εξωτερικών κουφωμάτων αλουμινίου με θερμοδιακοπή και ενεργειακούς υαλοπίνακες.

Στις παροχές περιλαμβάνονται εγκατάσταση δικτύου, δορυφορικής λήψης, συναγερμού.

Η επιλογή όλων των υλικών, από τα πλακίδια μεγάλων διαστάσεων αλλά και στα ερμάρια τόσο των υπνοδωματίων όσο και της κουζίνας, υπηρετούν τη σύγχρονη αισθητική και λειτουργία, παρέχοντας κατοικίες μοναδικές.

ΕΝΔΙΑΦΕΡΕΣΤΕ ΓΙΑ ΤΙΣ ΥΠΗΡΕΣΙΕΣ ΜΑΣ;

Επικοινωνήστε μαζί μας